KITCHENS
CONTEMPORARY KITCHEN REMODEL; SAN FRANCISCO
B
ACK TO RESIDENTIAL SAMPLES
SAN FRANCISCO-LOS ANGELES
HOME-BUSINESS-EVENT
BEFORE PHOTOS
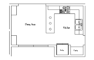
NEW SPACE PLAN
BACKSPLASH & CABINET DETAIL